BRUTO OPP: 83,1 m2
1 SLAAPKAMER
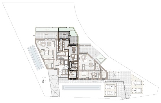
GELIJKVLOERS
ONDERGRONSE PARKING EN GEMEENSCHAPPELIJKE FIETSENSTALLING
Je kunt jouw cookievoorkeuren hier aanpassen. Schakel de volgende categorieën in of uit en sla de selectie op.