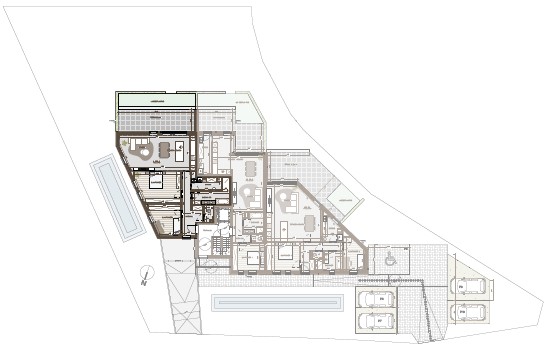
BRUTO OPP: 116 m2
2 SLAAPKAMERS
GELIJKVLOERS
ONDERGRONSE PARKING EN GEMEENSCHAPPELIJKE FIETSENSTALLING
Je kunt jouw cookievoorkeuren hier aanpassen. Schakel de volgende categorieën in of uit en sla de selectie op.